Bagno Disabili Misure Minime - Misure Minime Bagno Disabili

Bagno Disabili Misure Minime - Misure Minime Bagno Disabili. Le misure minime e le misure ideali da seguire per progettare un bagno accessibile Le dimensioni minime di un bagno a pianta quadrata sono 180×180. Locali igienici bagni per disabili. Parlare di misure sanitari bagno diventa un po' più difficile quando si tratta di bagni per chi ha problemi di mobilità. Le persone con difficoltà motorie come anziani e disabili devono poter usufruire di un bagno attrezzato in grado di agevolare e rendere sicuri i movimenti, garantendo la maggior autonomia possibile.

Le indicazioni e raccomandazioni del caso, che riguardano appunto le dimensioni dei bagni per disabili, sono scritte nel decreto 1989/236. Misure minime bagni locali pubblici lo spazio di manovra necessario all'accostamento e al trasferimento laterale dalla sedia a ruote alla tazza w.c. La chiusura deve essere del tipo a nottolino il che significa che la porta si può chiudere dall. La normativa per bagni per disabili. Il bagno per disabili, deve avere accorgimenti per renderlo utilizzabile da portatori di.

Bagni Pubblici Dwg E Dimensioni Bagno Disabili Misure ...
Bagni Pubblici Dwg E Dimensioni Bagno Disabili Misure ... from punchbuggylife.com
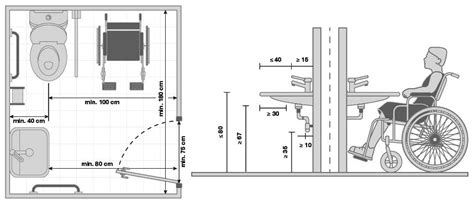
Sono invece 55 i centimetri che devono separare il lavandino dagli altri sanitari. 41/2009 che non detta superfici minime ma dimensiona i singoli spazi (es lo spazio necessario all'accostamento frontale della sedia a ruote al lavabo rispetta il minimo di 80 centimetri misurati dal bordo anteriore del Sulle dimensioni complessive del bagno pesano le modalità con cui la persona si muove. Alcuni consigli per realizzare o rendere un bagno fruibile da disabili. Le dimensioni minime di un bagno per un disabile sono pari 180 cm x 180 cm mentre la porta deve avere una luce di passaggio netta di almeno 85 cm e aprirsi verso l'esterno (se a battente), mentre la maniglia va collocata ad un'altezza compresa tra 85 e 96 cm, altezza consigliata 90 cm. Per quanto riguarda le misure, la tazza del wc deve essere posta ad una distanza minima di 40 cm dalla parete laterale destra e nel caso la parete disti più di 40 cm è d'obbligo porre a questa distanza un maniglione di sicurezza che possa aiutare i movimenti. E al bidet, ove previsto, deve essere minimo 100 cm misurati dall'asse dell'apparecchio sanitario; L'obbligo di bagno per disabili coinvolge gli esercizi che prevedono la somministrazione di alimenti e bevande, ma solo quelli che hanno uno spazio a disposizione del pubblico di almeno 250 mq e nei quali ci si può fermare a mangiare o a bere qualcosa.

Locali igienici bagni per disabili.

Da considerare almeno 150 cm larghezza minima per tutti i corridoi e passaggi, compresa la larghezza della porta. La normativa per bagni per disabili. Le misure minime e le misure ideali da seguire per progettare un bagno accessibile Quali sono le norme e i requisiti, le dimensioni minime, i prezzi sanitari e le migliori marche. Lo spazio di avvicinamento deve essere di 80 cm, il rubinetto deve essere del tipo a leva e lo specchio deve essere fruibile per tutti (bambini o chi seduto su sedia rotelle) quindi o abbassato vicino a bordo o reclinabile. Le misure ideali sono uno dei problemi più diffusi quando si parla di sanitari per disabili. 13 sull'abbattimento delle barriere architettoniche. Sulle dimensioni complessive del bagno pesano le modalità con cui la persona si muove. Le prescrizioni contenute nella normativa 236/89 trattano diversi punti che vanno dalle dimensioni del bagno, agli spazi tra i sanitari, oltre che una serie di accorgimenti da adottare per rendere più vivibile e sicuro l'ambiente. Alcuni consigli per realizzare o rendere un bagno fruibile da disabili. Si tratta di abolire le barriere architettoniche con le quali il portatore di handicap deve scontrarsi quotidianamente. E al bidet, ove previsto, deve essere minimo 100 cm misurati dall'asse dell'apparecchio sanitario; Se fissato a parete deve essere posto a cm 5 dalla stessa.

Il maniglione, posto sui due lati della porta, deve essere collocato ad un'altezza di 80 cm. Le persone con difficoltà motorie come anziani e disabili devono poter usufruire di un bagno attrezzato in grado di agevolare e rendere sicuri i movimenti, garantendo la maggior autonomia possibile. La larghezza minima dei percorsi orizzontali che precedono l'accesso al bagno per i disabili è fissata in 150 cm. Le prescrizioni contenute nella normativa 236/89 trattano diversi punti che vanno dalle dimensioni del bagno, agli spazi tra i sanitari, oltre che una serie di accorgimenti da adottare per rendere più vivibile e sicuro l'ambiente. La misura ideale è di 200×200 cm e permette il posizionamento di tutti i servizi igienici di un normale locale bagno quali vasca, lavandino, bidet e wc, con la possibilità di movimento completo di un fruitore con disabilità.

Misure Minime Bagno Disabili
Misure Minime Bagno Disabili from punchbuggylife.com
Minimi dimensionali che devono essere rispettati lo spazio necessario all'accostamento e al trasferimento laterale della sedia a rotelle alla tazza wc e al bidet (dove previsto), deve essere minimo di cm 100 dall'asse dell'apparecchio sanitario. Le indicazioni e raccomandazioni del caso, che riguardano appunto le dimensioni dei bagni per disabili, sono scritte nel decreto 1989/236. Per progettare un bagno per disabili è necessario conoscere gli elementi fondamentali, ovvero, gli spazi di manovra, gli ingombri e le misure minime, gli arredi e i materiali accessori. L'asse della tazza deve essere posto ad una distanza minima di 140 cm dalla parete laterale sinistra e ad una distanza minima di 40 cm dalla parete laterale destra. Nel decreto 1989/236 si possono leggere importanti raccomandazioni riguardanti proprio le dimensioni dei bagni accessibili a chi ha problemi di mobilità. Le misure bagni disabili locali pubblici della stanza devono essere minimo di 180 cm x 180 cm, con uno spazio antistante i sanitari principali di 55 cm. Il maniglione, posto sui due lati della porta, deve essere collocato ad un'altezza di 80 cm. 240 centimetri calcolati dalla superficie del pavimento all'intradosso del soffitto, se piano , o alla media calcolata in vari modi in caso di soffitti a volta o.

Le persone con difficoltà motorie come anziani e disabili devono poter usufruire di un bagno attrezzato in grado di agevolare e rendere sicuri i movimenti, garantendo la maggior autonomia possibile.

Corridoi e passaggi bagno disabili. Qui affrontiamo la questione del bagno disabili, ovvero mettiamo a disposizione disegni cad per chi stesse progettando o ristrutturando un bagno rendendolo accessibile a persone con disabilità, nello specifico in carrozzina. Parlare di misure sanitari bagno diventa un po' più difficile quando si tratta di bagni per chi ha problemi di mobilità. Essendo stato in passato docente di sostegno, sono molto sensibile al tema dell'abbattimento delle barriere architettoniche. Minime dimensioni 180 cm x 180 cm; Le misure ideali sono uno dei problemi più diffusi quando si parla di sanitari per disabili. Le persone con difficoltà motorie come anziani e disabili devono poter usufruire di un bagno attrezzato in grado di agevolare e rendere sicuri i movimenti, garantendo la maggior autonomia possibile. L'asse della tazza deve essere posto ad una distanza minima di 140 cm dalla parete laterale sinistra e ad una distanza minima di 40 cm dalla parete laterale destra. Lo spazio di avvicinamento deve essere di 80 cm, il rubinetto deve essere del tipo a leva e lo specchio deve essere fruibile per tutti (bambini o chi seduto su sedia rotelle) quindi o abbassato vicino a bordo o reclinabile. In sostanza, le dimensioni minime di un bagno per disabili sonoalmeno 180 cm x 180 cm, ma normalmente si progetta uno spazio di 200 cm x 200 cm per permettere un utilizzo ancora più sicuro ed agevole. Le indicazioni e raccomandazioni del caso, che riguardano appunto le dimensioni dei bagni per disabili, sono scritte nel decreto 1989/236. Ogggi vorrei parlarv della normativa e le prescrizioni di legge sul bagno per i disabili. 240 centimetri calcolati dalla superficie del pavimento all'intradosso del soffitto, se piano , o alla media calcolata in vari modi in caso di soffitti a volta o.

Ogggi vorrei parlarv della normativa e le prescrizioni di legge sul bagno per i disabili. L'asse della tazza deve essere posto ad una distanza minima di 140 cm dalla parete laterale sinistra e ad una distanza minima di 40 cm dalla parete laterale destra. La chiusura deve essere del tipo a nottolino il che significa che la porta si può chiudere dall. I bagni accessibili per disabili sono infine regolati dalla legge 9 gennaio 1989 n. Locali igienici bagni per disabili.

Bagno Disabili, Normativa e Caratterisitiche | Busco Auxilia
Bagno Disabili, Normativa e Caratterisitiche | Busco Auxilia from www.buscoauxilia.it
Vasta scelta di disegni e progetti per ogni necessità del progettista. Le prescrizioni contenute nella normativa 236/89 trattano diversi punti che vanno dalle dimensioni del bagno, agli spazi tra i sanitari, oltre che una serie di accorgimenti da adottare per rendere più vivibile e sicuro l'ambiente. Si tratta di abolire le barriere architettoniche con le quali il portatore di handicap deve scontrarsi quotidianamente. Quali sono le norme e i requisiti, le dimensioni minime, i prezzi sanitari e le migliori marche. Le dimensioni minime di un bagno a pianta quadrata sono 180×180. Nel decreto 1989/236 si possono leggere importanti raccomandazioni riguardanti proprio le dimensioni dei bagni accessibili a chi ha problemi di mobilità. Le normative sul bagno di casa il decreto ministeriale indica soltanto l' altezza minima bagno : Minime dimensioni 180 cm x 180 cm;

85 cm luce netta minima.

Qui affrontiamo la questione del bagno disabili, ovvero mettiamo a disposizione disegni cad per chi stesse progettando o ristrutturando un bagno rendendolo accessibile a persone con disabilità, nello specifico in carrozzina. 41/2009 che non detta superfici minime ma dimensiona i singoli spazi (es lo spazio necessario all'accostamento frontale della sedia a ruote al lavabo rispetta il minimo di 80 centimetri misurati dal bordo anteriore del A tal fine, le dimensioni per un bagno per disabili devono rispettare alcuni vincoli: La larghezza minima dei percorsi orizzontali che precedono l'accesso al bagno per i disabili è fissata in 150 cm. Essendo stato in passato docente di sostegno, sono molto sensibile al tema dell'abbattimento delle barriere architettoniche. Ogggi vorrei parlarv della normativa e le prescrizioni di legge sul bagno per i disabili. Se fissato a parete deve essere posto a cm 5 dalla stessa. 240 centimetri calcolati dalla superficie del pavimento all'intradosso del soffitto, se piano , o alla media calcolata in vari modi in caso di soffitti a volta o. Ed al bidet, ove previsto, deve essere minimo 100 cm misurati dall'asse dell'apparecchio sanitario; La norma indica nei 20 centimetri lo spazio tra un sanitario e l'altro. Corridoi e passaggi bagno disabili. Le prescrizioni contenute nella normativa 236/89 trattano diversi punti che vanno dalle dimensioni del bagno, agli spazi tra i sanitari, oltre che una serie di accorgimenti da adottare per rendere più vivibile e sicuro l'ambiente. In sostanza, le dimensioni minime di un bagno per disabili sonoalmeno 180 cm x 180 cm, ma normalmente si progetta uno spazio di 200 cm x 200 cm per permettere un utilizzo ancora più sicuro ed agevole.